欢迎访问南通普瑞斯流体机械有限公司官网!
邮箱地址:pr@ntprius.com
您当前的位置:首页 >> 精细过滤设备 >> 陶瓷滤芯精细过滤器
 
陶瓷滤芯精细过滤器

 加入时间:2018-5-7 10:09:51  点击:

一、产品特性
陶瓷精细过滤器是以多孔陶瓷为滤件的固、液、气分离与净化装置,具有价格低廉、过滤效率高、易于反吹再生等优点,特别适用于强酸、强碱、高温、高压介质的精细过滤与分离。过滤精度0.5μm~10μm。
二、产品型号标注

   


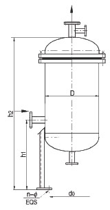
三、陶瓷滤芯精细过滤器安装尺寸